Home page Appartamento (Bologna)
Chiudi
Bologna
Savena - Via Roselle
€ 2.000
120
4 locali
Rif. 02/26
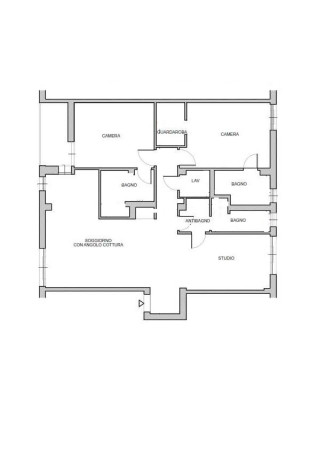
(Via Roselle) Richiesta fideiussione bancaria 3 mensilità e deposito cauzionale 1 mensilità. In contesto residenziale circondato dal verde e comodissimo ad ogni servizio. Appartamento di ampia metratura posto al settimo ed ultimo piano panoramicissimo e luminosissimo completamente ristrutturato. Ottima distribuzione degli spazi, uso di materiali di pregio. Ingresso su ampio salone con cucina a vista, tre camere di cui una padronale con cabina armadio e bagno, una matrimoniale con bagno, terza camera e terzo bagno oltre lavanderia, balcone loggiato, cantina ciclabile e garage. € 2.000,00/mese Riferimento numero (02/26) Visita dalmonte.net. Per una consulenza gratuita con un nostro agente immobiliare, per acquisto o vendita, vieni a trovarci in una nostra agenzia o chiamaci al numero 051/43.11.68 o scrivici a info@dalmonte.net. Avrai a disposizione la nostra esperienza e conoscenza del mercato. Ti aspettiamo.
Si specifica che le planimetrie sono indicative e non sono in scala. Le informazioni riportate non hanno carattere contrattuale.
 Chiama            Stampa
  • Riferimento:
    02/26
  • Contratto:
    Affitto
  • Tipologia:
    appartamento
  • Prezzo:
    € 2.000
  • Superficie:
    120
  • Numero vani:
    4
  • Anno:
    -
  • Condizioni:
    ottimo
  • Stato immobile:
    -
  • Piano:
  • Piani edificio:
    7
  • Ascensore:
  • Balcone:
  • Terrazzo:
    no
  • Cantina:
  • Garage:
  • Posti auto:
    no
  • Riscaldamento:
    centralizzato
  • Condominiali:
    € 120 (mensili)
  • Cert. Energetica:
    -